Piano terra
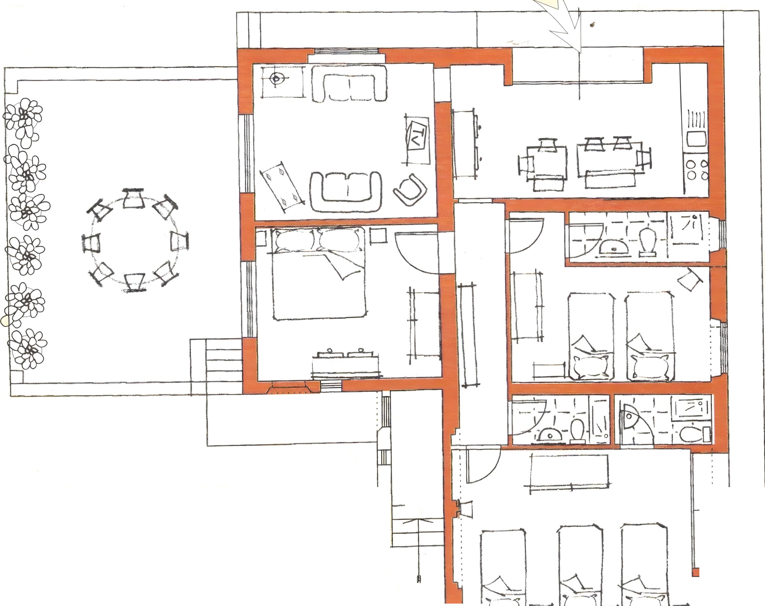
Ci sono grandi finestre ad arco in tutte le stanze di questo grande appartamento, che ha una cucina (fornelli elettrici), soggiorno con divano letto matrimoniale, tre camere da letto (una matrimoniale, una doppia e una tripla), tre bagni con doccia, uno con finestra. TV satellitare, riscaldamento autonomo. Veranda privata.


